






































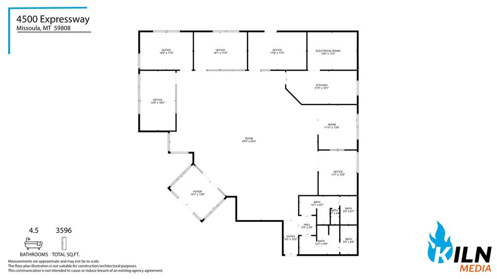
This former bank building, located on a sprawling 1.9-acre lot, offers exceptional potential for a wide range of commercial uses. Built in 2007, the 3,000+ square foot structure retains many of the features ideal for its former use, including a drive-up infrastructure for added convenience and customer service. With zoning that supports a variety of business applications, the property presents a fantastic opportunity for entrepreneurs and businesses seeking a prime location. The building boasts a functional layout, including 4 private offices, a spacious open-concept lobby, and separate men's and women's bathrooms. The modern interior features durable ceramic tile flooring and automatic doors for seamless accessibility. The striking stone exterior facade complements the custom wooden beam feature on the covered entryway, adding a touch of sophistication and character. Situated conveniently along Expressway and adjacent to the popular Canyon Creek neighborhood, the location provides excellent visibility and easy access. The property is also equipped with ample private parking, ensuring plenty of space for both customers and employees. Surrounding mature landscaping enhances the overall appeal of this unique commercial property. This property is a standout opportunity for businesses looking to make their mark in a highly accessible, well-established location with great potential for growth and development.
Brad Little