

















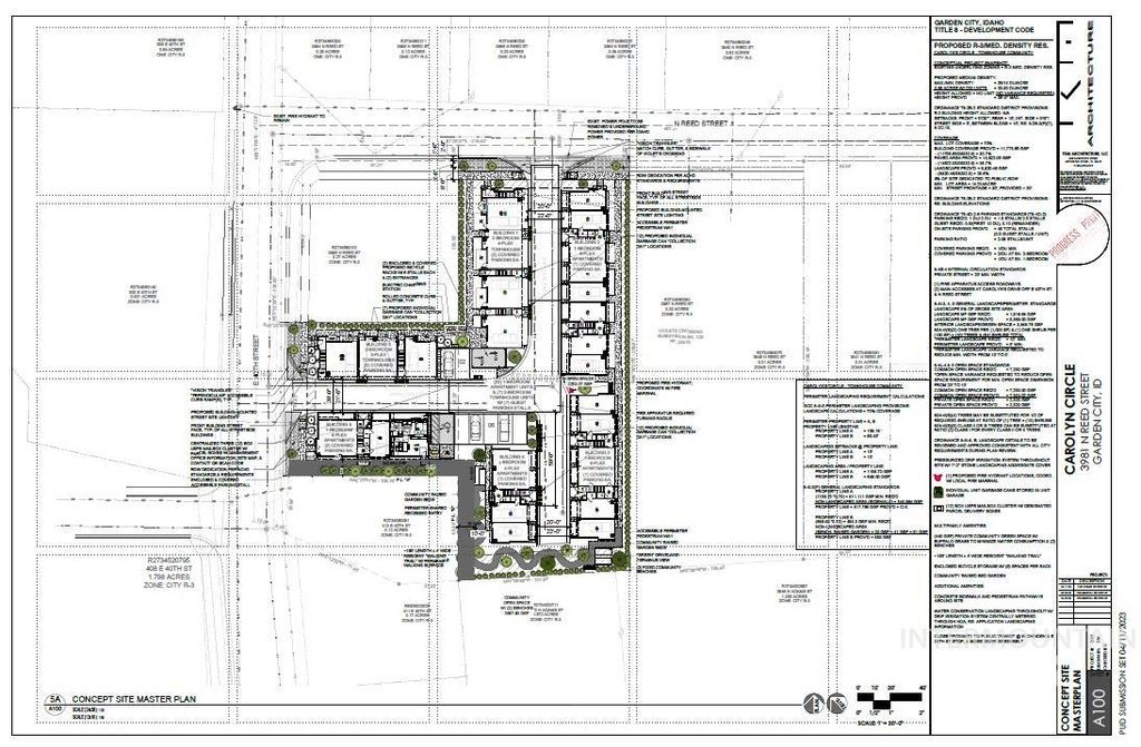
Carolyn Circle presents an exceptional investment opportunity in Garden City’s rapidly growing real estate market, offering an A+ location just steps from the Boise River & Greenbelt & minutes from Downtown Boise. This high-end townhome & multifamily development includes 29 premium units across 22,055 sq ft of refined living space & is fully entitled, with construction docs near completion. Residents will enjoy immediate access to scenic trails, wineries, craft breweries, live music, river floating, & a vibrant boardwalk lifestyle. The project’s appeal is further elevated by Garden City’s major transformation, driven by significant nearby developments. These include the College of Western Idaho River District campus opening in 2027, the $1.17 billion St. Luke’s Health System expansion, & the 50-acre Park at Expo Idaho set to open in 2026. Proximity to Boise’s USL professional soccer stadium, major highways, parks, & cultural venues enhances accessibility. Priced attractively amid Idaho’s strong population.
Brad Little