



























































































































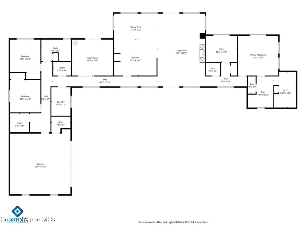
Experience the beauty of North Idaho living on 50.6 acres across two parcels, offering space, privacy, and unmatched versatility. Together, the main residence and guest house provide 4,118 sq ft of total living space. Designed for convenience, there are no stairs in any of the buildings, making the property fully accessible. Anchoring the property is a 4 bedroom, 2.5 bath residence with 3,222 sq ft, where expansive windows frame panoramic views from both the front and back. One bedroom is non-conforming, adding flexibility to meet your needs. The grounds are thoughtfully designed for both comfort and function, featuring a 30x40 shop, established garden space, and fruit trees. Two dry cabins add charm and versatility---one fully finished for immediate use, the other awaiting your personal touch. A newly remodeled and fully permitted 896 sq ft guest house with 1 bedroom and 1 bath provides the perfect retreat for guests or an extended stay. With a second potential build site and easy access to both public and private timberland, outdoor enthusiasts will find endless opportunities. ATV and walking trails meander throughout the acreage, creating space for recreation and exploration. Just minutes from the Chain Lakes, Trail of the Coeur d'Alenes, and premier hunting and fishing, this estate balances elegance with a true North Idaho lifestyle. All this within 35 miles of Coeur d'Alene and 20 miles of St. Maries.
Brad Little