


































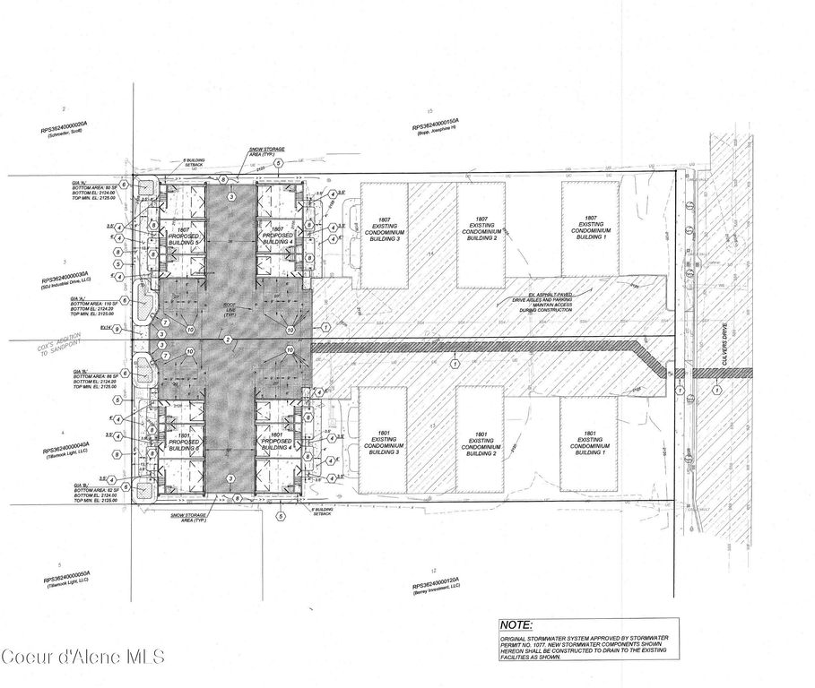
Explore the promising development potential of these vacant building pads on Culvers Drive, featuring approved plans for four triplex-style buildings. Each meticulously designed unit is approximately 930 Sq ft offering a generous layout with 2 bedrooms, 1.5 bathrooms, and attached garage space. With plans and permits ready for 3 units, this property not only provides an exceptional opportunity for investors but also a thoughtfully crafted vision for a residential community. Photos of the interior dictate the unit's recently completed. Plans based on existing units next door. Nestled in an established condo community within the Industrial General zone, this location not only boasts proximity to downtown Sandpoint but also provides stunning mountain views. Balconies would overlook Schweitzer Mountain, enhancing the appeal of these residences. Conveniently situated for quick access to restaurants, downtown shopping, Sandpoint City Beach and other local amenities.
Brad Little