

















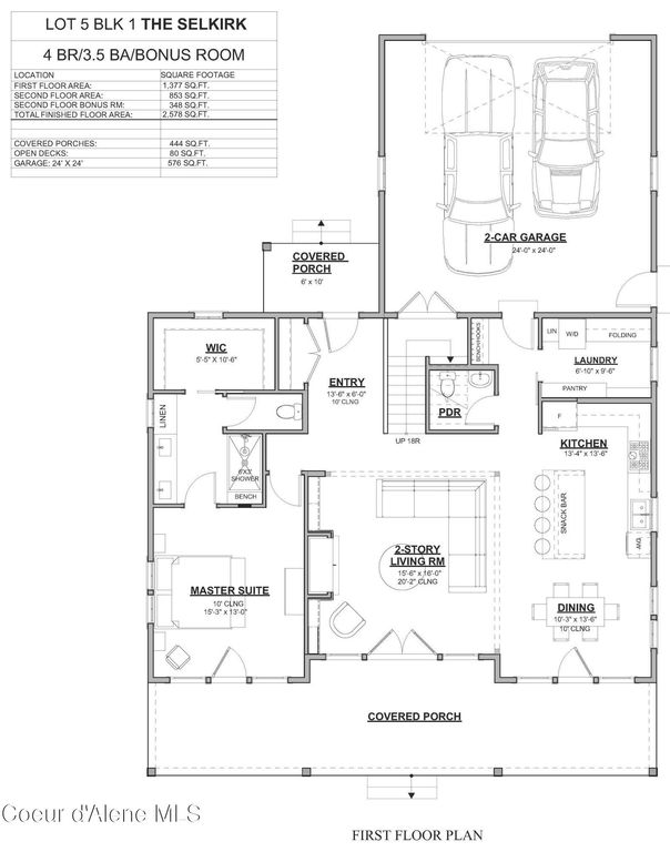
Old Mill is a master planned community on 180 Acres in Oldtown, Idaho. The site features 1-1/2 miles of river frontage on the Pend Oreille River with Southern Exposure. The Selkirk model is now under construction with almost 2600 sq ft of living space, a main floor master suite and southern exposure. Unobstructed river views. Estimated completion Early 2026 Old Mill is approximately 37 miles from the Spokane International Airport for easy access. Sandpoint is 28 miles away which features a vibrant lake front community and nearby Schweitzer Ski Resort with world class skiing.
Brad Little