







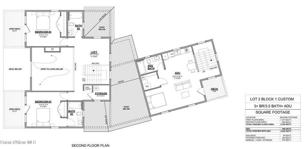
Old Mill is a master planned community on 180 Acres in Oldtown, Idaho. The site features 1-1/2 miles of river frontage on the Pend Oreille River with Southern Exposure. The Kalispel model features a 2240 sq ft main house, with main floor master suite and southern exposure. A 3 car garage with 863 Sq Ft ADU above with it's own entrance. Unobstructed south facing river views. Old Mill is approximately 37 miles from the Spokane International Airport for easy access. Sandpoint is 28 miles away which features a vibrant lake front community and nearby Schweitzer Ski Resort with world class skiing.
Brad Little